Banner background

2 Beds, 2 Baths in Upper East Side - $9,900

People Interested in the Apartment
Apartment for Rent

53 East 64th Street PH

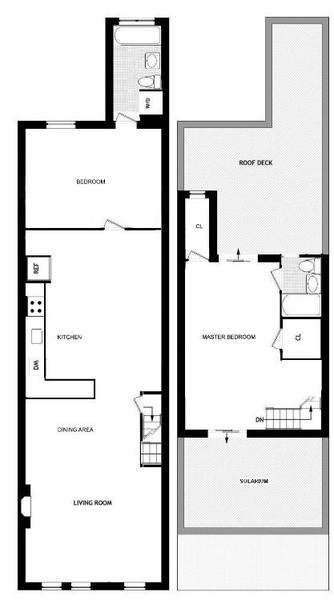
Upper East Sides best new listing with 1,800 square-feet awe-inspiring indoor and 1,000 square-feet outdoor space. This gorgeous 2-bedroom, 2-bathroom renovated walk-up penthouse is located on one of the most powerful and exquisite blocks on the Upper East Side. With a dining area and a gorgeous master bedroom with an en-suite bath, this unique space is ideally suited for entertaining or as a comfortable live/work space. Incredibly spacious and impeccably designed, this condominium has a chic and meticulously open and fully equipped kitchen, with high-end appliances, beautiful countertops, and top-grade fixtures. Other alluring features include generous storage space and walk-in closets, a wood-burning fireplace, and a private rooftop with natural sunlight flooding from the gems oversized windows and high ceilings. Whats more, a prime Upper East Side location between Park and Madison Avenues puts you virtually atop one of the best neighborhoods in New York City. With no other section having its cachet and glamour, enjoy the delights of being an Upper East Sider by dropping in at the Whitney, the Metropolitan, and The New York Society Library. After all, the Upper East Side is New York, and ultimate convenience and luxury is yours.





2 bedrooms apartment for rent in Upper East Side - Manhattan, New York
2 bedrooms apartment for rent in Upper East Side - Manhattan, New York
2 bedrooms apartment for rent in Upper East Side - Manhattan, New York
2 bedrooms apartment for rent in Upper East Side - Manhattan, New York
2 bedrooms apartment for rent in Upper East Side - Manhattan, New York
2 bedrooms apartment for rent in Upper East Side - Manhattan, New York
2 bedrooms apartment for rent in Upper East Side - Manhattan, New York
2 bedrooms apartment for rent in Upper East Side - Manhattan, New York
2 bedrooms apartment for rent in Upper East Side - Manhattan, New York
2 bedrooms apartment for rent in Upper East Side - Manhattan, New York
2 bedrooms apartment for rent in Upper East Side - Manhattan, New York
2 bedrooms apartment for rent in Upper East Side - Manhattan, New York
2 bedrooms apartment for rent in Upper East Side - Manhattan, New York
2 bedrooms apartment for rent in Upper East Side - Manhattan, New York
2 bedrooms apartment for rent in Upper East Side - Manhattan, New York
2 bedrooms apartment for rent in Upper East Side - Manhattan, New York
Rent: $9,900
Move in date: June 2022
Lease Duration: 1 Year
Address: 53 East 64th Street
Furniture: Fully Furnished
Bedrooms: 2
Baths: 2
Pets: Pet Friendly
WASHER/DRYER